
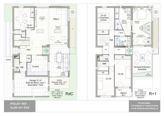
ALDE - V01 - Extension et Rénovation d'une Maison Individuelle
PROGRAMME v01 - Maison individuelle (Année de construction 2004) - 2 Extensions (RDC : Salle à manger - R+1 : Chambre / Dressing / Coin TV / Coin Bureau) + Rénovation intérieure (RDC : Séjour / Escalier - R+1 : Nouvelle salle de bain (Parents) / Nouvelle salle de douche (Amis) + Construction en Sous-Sol (Cave) + Terrasse accessible au R+1.
Extension RDC
- Sous sol : Cave, stockage vins et archives.
- Extension vitrée sur le jardin, espace ouvert en été : Salle à manger.
- Toiture Terrasse de l’extension accessible (Apéritif / Solarium).
NOTA : Attentions particulières pour l'accès à la cave, l'accès à la terrasse possible depuis le jardin, par escalier extérieur - Chauffage par radiateur pour l’extension - Jonction entre l’extension et l’existant en terrasse à étudier, éventuellement en partie vitrée pour un effet type "puits de lumière" dans la salle à manger - Prévoir un bac végétalisé pour filtrer le regard - Mise en valeur du pin toscan.
Extension R+1
- Création d’une chambre parents.
- Création d’une salle de bain avec balnéo et dressing.
- Rénovation de la salle de bain existante en salle de douche confortable.
NOTA : Attentions particulières pour la lumière naturelle et la vue dans les espaces crées et existants.
Aménagement intérieur
- Rénovation des sols du RDC : Parquet / Séjour et carrelage / Cuisine.
- Rénovation des murs du RDC. - Créer une cheminée à l’éthanol dans le séjour.
- Rénover l’escalier intérieur. - Rénover le garage.
- Rénovation des sols du R+1 : Parquet partout sauf SdB / Carrelage.
NOTA : Nouvel agencement du séjour avec l’arrivée de la cheminée à l’éthanol - Amélioration de l'ergonomie dans la disposition / relation entre la zone avec les canapés et la zone pour HI-FI / TV LCD / Ecran de Projection.